Rif: LD-54
GENOVA
GENOVA - zona Marassi
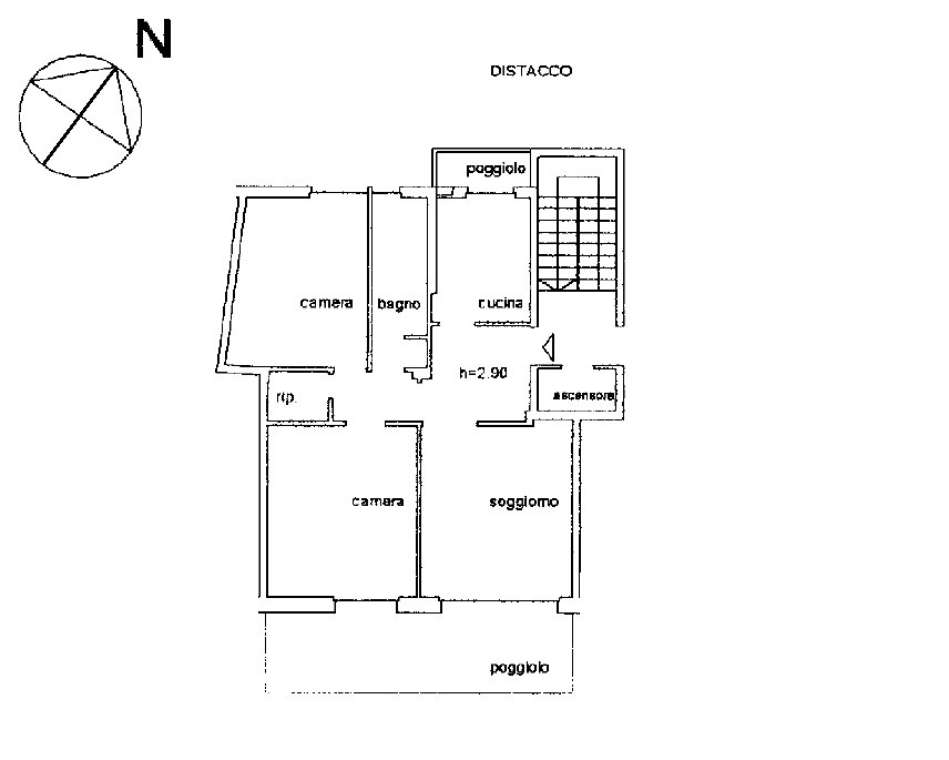
VENDUTO - Nuda Proprietà --- Genova Marassi Forte Quezzi/Biscione, in Via Lamberto Loria, proponiamo in vendita la NUDA PROPRIETA' di un appartamento posto al settimo ed ultimo piano di una palazzina dotata di ascensore che è attualmente oggetto di ristrutturazione integrale. L'appartamento gode di una doppia esposizione, verso mare e verso la pineta . Esso è attualmente così suddiviso: ingresso, sala, cucina abitabile, due camere da letto, bagno e dispensa. L'appartamento gode di una balconata panoramica vivibile lato mare - a servizio della sala e dell'attuale camera da letto matrimoniale - e di un secondo balcone a servizio della cucina abitabile. Riscaldamento centralizzato con valvole termostatiche. Posti auto condominiali liberi sotto casa. Richiesta per la Nuda Proprietà Euro 76.000. www.ldimmobiliare.it
Consistenze
| Descrizione | Superficie | Sup. comm. |
|---|---|---|
| Principali | ||
| Immobile - 7° piano | 84 Mq | 84 Mqc |
| Balcone - 7° piano | 3 Mq | 1 Mqc |
| Balcone - 7° piano | 12 Mq | 4 Mqc |
| Totale | 89 Mqc | |







